
TAGS
Corporate
Data:
November 25, 2025
Incanto Rustico: un rifugio accogliente in Campania
“E’ qui che sono cresciuta ed è qui che voglio tornare”
Perito è un luogo particolare, dove respiri ancora la genuinità di una volta. Immerso nel Parco Nazionale del Cilento, è un posto magico. Innanzi tutto per i panorami infiniti, dove il verde delle colline incontra il mare. Ed è proprio questo lo scenario che ci si presenta quando entriamo perla prima volta in casa Apolito. Un salone dove le finestre sembrano quadri appesi alle pareti, che raffigurano una natura incontaminata, come nei tipici paesaggi dei pittori fiamminghi.

“E’ qui che sono cresciuta ed è qui che voglio tornare” - ci racconta Cesira, che di anni ne ha appena compiuti 90.
Il paese, che si sviluppa in lunghezza, ha la tipica conformazione dei luoghi che si sono fermati a qualche anno fa, quando ancora la comunità era nutrita e l’agricoltura e la coltivazione degli ulivi la faceva da padrone. Oggi Perito ha pochi abitati d’inverno ma si popola incredibilmente d’estate. Nostalgici, parenti, curiosi, tutti gravitano attorno a questo paese dalle case in pietra viva. Ed è qui che ritorna Cesira ogni anno, marito, figli, nipoti e amici al seguito.

La sua abitazione di due piani è da rinnovare completamente, deve essere resa più comoda e confortevole e deve tener conto di una specifica caratteristica: essere accogliente. Come dicevamo, qui durante l’estate vengono tutti. C’è quindi bisogno di un grande tavolo dove tutti si possano accomodare e di quanti più posti letto possibile. Ecco che inizia il nostro progetto.

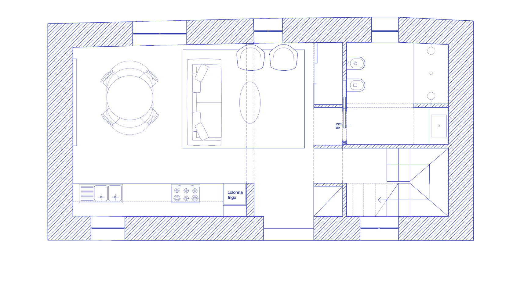
Il piano terra, composto da un piccolo salotto con cucina, un bagnetto ed una camera da letto, viene ripensato completamente. Si abbattono le pareti e allargano gli spazi, per inserire un comodo tavolo da 12 posti ed un divano che diventa un letto. Il salotto ha un camino, che è stato completamente restaurato e rivestito in pietra, per creare una connessione con l’esterno. I lampadari sono tutti minimal, ad eccezione di quelli sopra il tavolo, in paglia di Vienna. Ne beneficia anche il bagno, che viene raddoppiato, inserendo una zona lavanderia e una doccia walk in da 140cm.
Il secondo piano viene collegato da una nuova scala in ferro color vinaccia, che dona personalità, contrapponendosi alle pareti completamente bianche. Qui l’intervento è meno invasivo. Tutte le camere vengono mantenute nel loro assetto naturale, ma dotate di aria condizionata. Il bagno viene allargato, anche in questo caso per renderlo più funzionale.
La logica con cui sono stati scelti i colori, i materiali egli arredi risponde a indicazioni precise:
Calore e Comfort: L’utilizzo di legni dalle tonalità calde e texture materiche invitano al relax.
Elementi Naturali: Materiali naturali come pietra, uniti a dettagli più moderni in tonalità scure creano un mix tra tradizione e innovazione, tra interno ed esterno.
Accenti Vintage: Pezzi senza tempo che raccontano una storia sono usati per donare un accento eclettico ad una casa più rustica.
Luce: la scelta di allargare le finestre in facciata risponde all’esigenza di massimizzare la luce naturale e lasciare che la bellezza della campagna diventi la protagonista.
Atmosfera: il camino è diventato il cuore della casa, pensato per enfatizzare serate accoglienti e conversazioni intime.
Accessori: ceramiche, quadri e piccoli dettagli artigianali enfatizzano l’autenticità dello spazio.
Il progetto si completerà nel corso del 2024 di due nuovi spazi: un recupero di un locale magazzino adiacente all’abitazione, dotato di un ampio terrazzo che permetterà un’esperienza di relax a 360 gradi.
